News
21 December 2020
Planning application for regeneration of landmark site in Birmingham city centre
Acting on behalf of Watkin Jones Group, the UK’s leading developer of residential for rent communities, Turley has submitted plans for ...
What are you looking for?
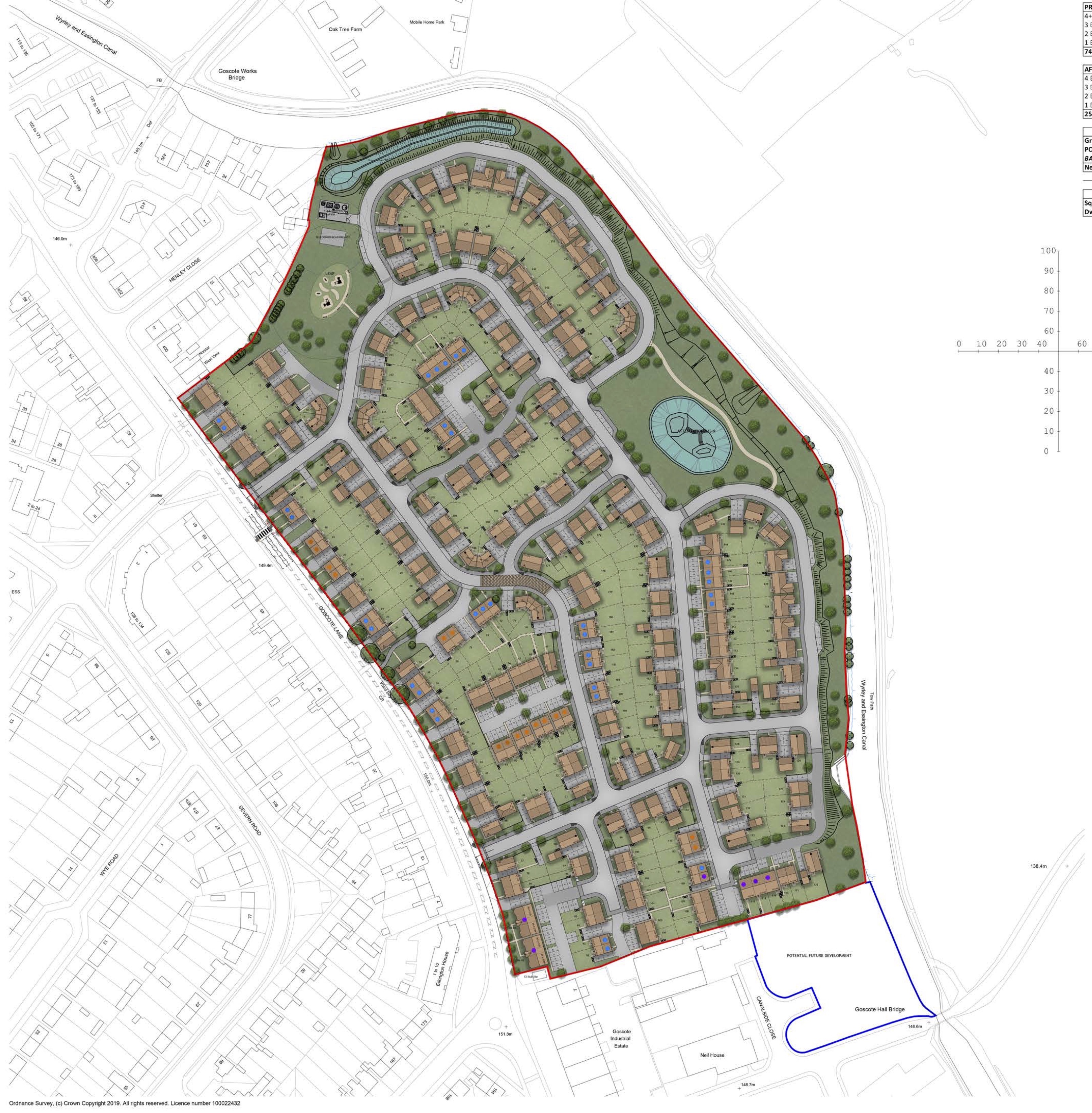
We provided expert Planning services for the scheme which, along with the new homes, will mean residents will benefit from a large area of public open space with the inclusion of an equipped play area, as well as the creation of a bus stop located centrally to Goscote Lane. In addition, Taylor Wimpey will be providing at least 25% affordable housing as part of the plans for the development.
The development, which will contain a series of two, three and four bedroom homes and one & two bedroom apartments, is designed to suit a variety of needs, from first time buyers and downsizers, to families and couples.

Guy Bicknell, Land & Planning Director at Taylor Wimpey Midlands, said:
“We are delighted to have received planning permission for the site in Walsall. The development will provide much needed homes, including affordable housing, and investments for the local community.
“We will ensure that this latest development positively contributes to the local community, by providing it with high-quality facilities and transport infrastructure.”
Construction on site is anticipated to start in February 2021.
26 January 2021
21 December 2020
Acting on behalf of Watkin Jones Group, the UK’s leading developer of residential for rent communities, Turley has submitted plans for ...
25 January 2021
Planning has been granted to Bloor Homes on the final plot of 114 homes at Blythe Valley Park, a project which ...
14 December 2020
Acting on behalf of Bruntwood SciTech, a joint venture between Bruntwood and Legal & General, in partnership with University of Birmingham, ...